低粘度自力式壓力調節閥安裝調試
2022-02-21 09:45:25
88
壓力分段范圍細且互相交叉,調節精度高。
壓力設定值在運行期間可連續設定。
對閥后壓力調節,閥前壓力與閥后壓力之比可為10:1~10:8。
橡膠膜片式檢測,執行機構測精度高、動作靈敏。
采用壓力平衡機構,使調節閥反應靈敏、控制。
注:1.壓閉型用于閥后壓力調節,當閥后壓力升高,閥門關閉,以達到減壓,穩壓的目的。
2.壓開型用于閥后壓力調節,當閥后壓力升高,閥門打開,以達到泄壓,穩壓的目的。
低粘度自力式壓力調節閥安裝調試主要零件材料
閥體:ZG230-450、ZG1Cr18Ni9Ti 、ZGCr18Ni12Mo2Ti
閥芯:1Cr18Ni9Ti 、Cr18Ni12Mo2Ti
閥座:1Cr18Ni9Ti 、Cr18Ni12Mo2Ti
閥桿:1Cr18Ni9Ti 、Cr18Ni12Mo2Ti
膜蓋:A3、A3鋼涂四氟乙烯 不銹鋼
填料:丁、乙炳、氟、耐油橡膠,

低粘度自力式壓力調節閥安裝調試安裝方式
1. 閥在氣體或低粘度液體介質中使用時,通常ZZY型自力式壓力調節閥為直立安裝在水平管上,當位置空間不允許時才倒裝或斜裝,當確認介質很潔凈時,可不安裝過濾器。
2. 閥在蒸汽或高粘度液體介質中使用時,通常ZZY型自力式壓力調節閥為倒立安裝在水平管上。,

低粘度自力式壓力調節閥安裝調試安裝時應注意以下幾點:
1. 冷凝器應高于調壓閥的執行機構而低于閥前后接管。使用前冷凝器應灌滿冷水,以后約3個月灌水一次。
2. 取壓點應取在調壓閥適當位置,閥前調壓應大于2倍管道直徑,閥后調壓應大于6倍管道直徑。
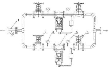
3. 為便于現場維修及操作,調壓閥四周應留下適當空間,閥前后應設置截止閥與旁路手動閥。
4. 調壓閥通徑過大(DN≥100時),應有固定支架。
5. 當確認介質很潔凈時,過濾器可不安裝。
6. 自力式閥可以比管道通徑小,但過濾器和截止閥不能。
當介質流體從閥前流過經過閥芯閥座節流后,轉化為閥后壓力。然后經過管線輸入上腔室作用在頂部的托盤上,這時產生的作用力會與彈簧的反作用力相對等。這樣就決定了閥芯閥座的相對位置,從而控制閥后壓力。當閥后壓力增加時作用在頂盤上的作用力也隨之增加,使閥芯關關向閥座的位置,這樣閥芯和閥座之間的間隔就減小,流阻變大閥后壓力降低。直到頂盤上的作用力與彈簧反作用力相平衡為止,從而使閥后壓力下降到預設值。當閥后壓力降低時,作用方向與之前所說相反,這就是自力式調節閥的工作流程了。